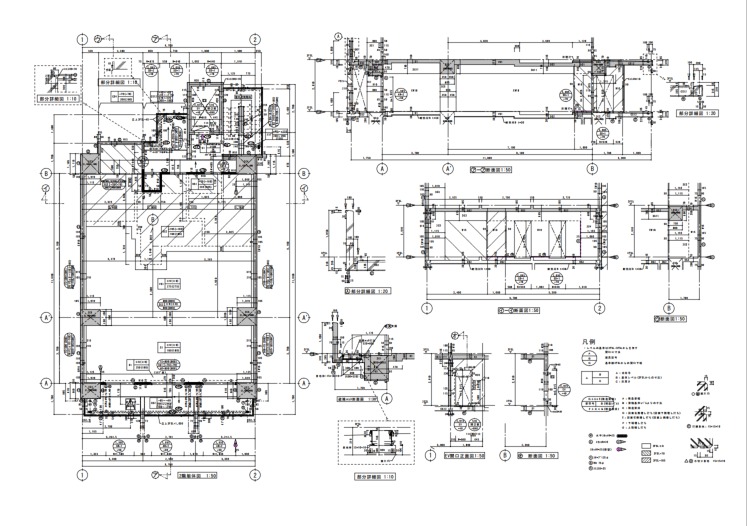
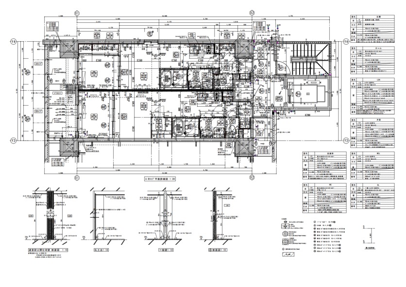
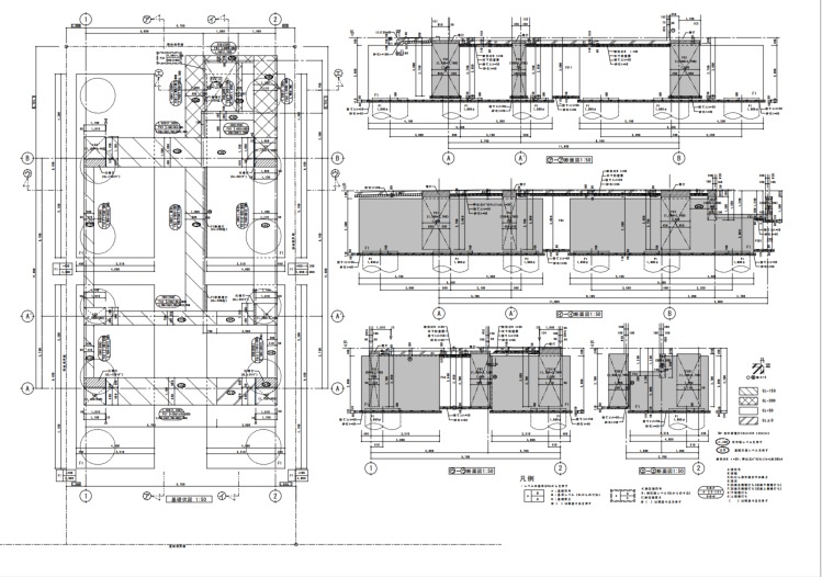
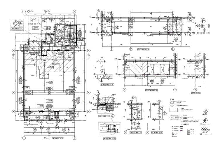
建築施工図は、構造や仕上げなど複数の工種を調整する重要な役割を担っています。
不十分な施工図は現場での手戻りやコスト増加の原因となり得ます。
当社は、意匠図・構造図の施工図を中心に、基本設計段階から施工図面まで対応いたします。
豊富な実務経験を活かし、正確かつ分かりやすい図面を作成することで、現場のスムーズな進行を支援いたします。
また、変更や追加対応にも迅速に対応し、安心して任せていただけるパートナーを目指しています。
主な施工図面の種類:
経験豊富な技術者が日本基準に沿った正確な図面を作成し、施工現場の効率化と品質向上に貢献します。
納期や仕様変更にも柔軟に対応可能です。








