Dịch vụ

Table Of Content

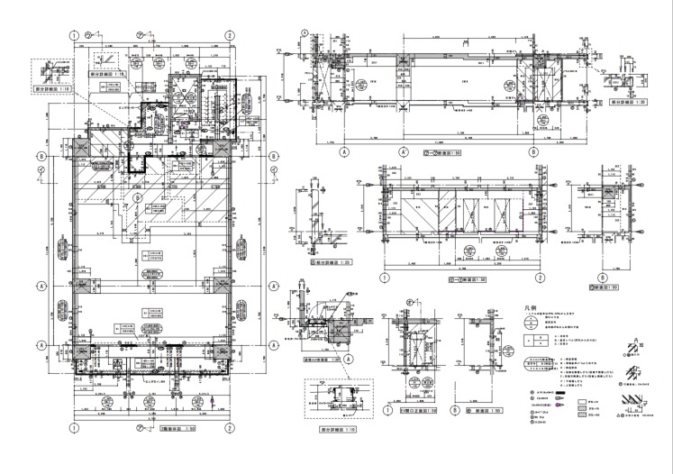
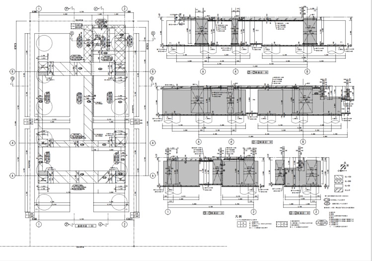
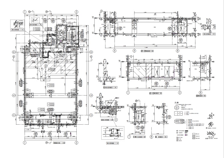
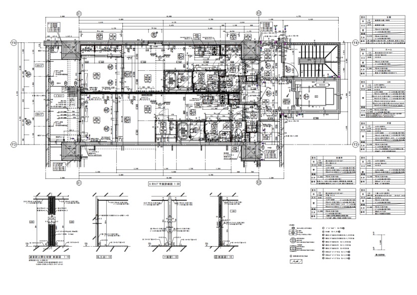
Bản vẽ thi công

Bản vẽ thi công đóng vai trò quan trọng trong việc điều phối nhiều hạng mục thi công như kết cấu và hoàn thiện.
Bản vẽ thi công không đầy đủ có thể gây ra việc làm lại tại công trường hoặc làm tăng chi phí.
Công ty chúng tôi tập trung vào bản vẽ thi công từ bản vẽ kiến trúc và kết cấu, đáp ứng từ giai đoạn thiết kế cơ bản đến bản vẽ thi công hoàn chỉnh.
Với kinh nghiệm thực tế phong phú, chúng tôi tạo ra các bản vẽ chính xác và dễ hiểu, hỗ trợ tiến độ thi công tại công trường diễn ra thuận lợi.
Ngoài ra, chúng tôi cũng phản ứng nhanh với các yêu cầu thay đổi hoặc bổ sung, nhằm trở thành đối tác đáng tin cậy mà quý khách có thể yên tâm giao phó.
Các loại bản vẽ thi công chính:

Với đội ngũ kỹ thuật viên giàu kinh nghiệm, chúng tôi luôn tạo ra bản vẽ chính xác theo tiêu chuẩn Nhật Bản, góp phần nâng cao hiệu quả và chất lượng tại công trường.
Chúng tôi cũng có thể linh hoạt đáp ứng các yêu cầu về tiến độ và thay đổi thiết kế.

Website chính thức Xôi Lạc TV

Kênh trực tiếp bóng đá Xoilac TV HD

Quan tâm :

Link Vebo TV trực tiếp bóng đá

Xem RakhoiTV tiếng Việt

Xem trực tiếp bóng đá Mi Tom TV

Link Uniscore tỷ số bóngá UniScore.com

Bóngá Socolive 1 tv trực tiếp tiếng Việt

Kênh Xoilac TV chính thức

link vào 8xbet