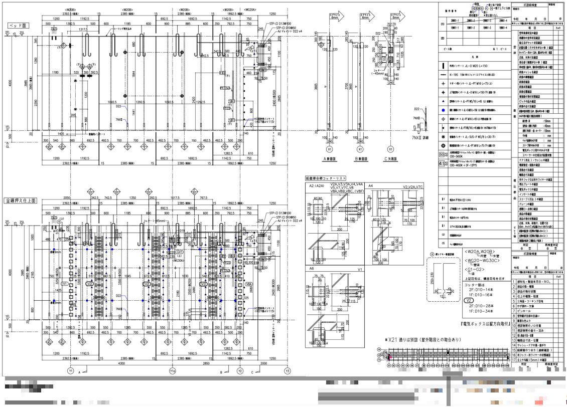
Bản vẽ thi công và bản vẽ chế tạo cho các cấu kiện bê tông đúc sẵn (PCa) hay bê tông ứng suất trước (PC) đòi hỏi kiến thức chuyên môn và độ chính xác cao.
Chúng tôi có thế mạnh trong lĩnh vực này và đã tham gia nhiều dự án lớn nhỏ.
Các loại bản vẽ có thể thực hiện:
Với đội ngũ kỹ thuật viên giàu kinh nghiệm, chúng tôi luôn tạo ra bản vẽ chính xác theo tiêu chuẩn Nhật Bản, góp phần nâng cao hiệu quả và chất lượng tại công trường.
Chúng tôi cũng có thể linh hoạt đáp ứng các yêu cầu về tiến độ và thay đổi thiết kế.








